Ile kosztuje inteligentne sterowanie żaluzjami i roletami?
Elektryczne żaluzje i rolety stają się coraz bardziej popularne i stanowią częsty wybór nawet przy rekonstrukcjach domów i mieszkań. Przy wyborze systemu zacieniania pojawia się również kwestia sterowania. Właściciele często zdają sobie sprawę, że ręczne sterowanie zajmuje im dużo czasu i zmusza ich do codziennego podejmowania decyzji. Na szczęście istnieje również inteligentne sterowanie Loxone. Zapewnia łatwą obsługę, aplikację mobilną i może sterować zacienianiem w pełni automatycznie. Cena? Pewnie astronomiczna. Ale nic bardziej mylnego, ponieważ za całość nie musimy zapłacić ani złotówki.
Ani złotówki? Zapewne zastanawiasz się teraz, co mamy na myśli. To bardzo proste. Dzięki automatyzacji zacieniania w wielu przypadkach nie ma konieczności inwestowania dużych pieniędzy w klimatyzację i jej eksploatację. Pisaliśmy o tym w innym artykule. Zaoszczędzone koszty klimatyzacji spokojnie pokryją inwestycję w inteligentną automatykę Loxone.
Nawet jeśli nie chcemy brać pod uwagę klimatyzacji, możemy śmiało powiedzieć, że cena inteligentnej automatyzacji żaluzji i rolet z Loxone jest porównywalna z ceną tradycyjnych systemów sterowania elektrycznym zacienianiem. Wartość dodana dla użytkowników jest jednak znacznie wyższa.
Dzięki uniwersalnej koncepcji systemu Loxone jest to jeszcze korzystniejsze w praktyce. Posiadając w budynku Miniserver (jednostka sterująca), można go również wykorzystać do sterowania dziesiątkami innych technologii, które nie muszą mieć już innych systemów sterujących. Jest to nie tylko opłacalne, ale także bardzo praktyczne. Cały budynek funkcjonuje wtedy jak dobrze skoordynowana orkiestra, a możliwości poszczególnych technologii są znacznie bardziej rozbudowane. Nie ma problemów z utrzymaniem poszczególnych systemów, skomplikowanego sterowania i tym podobnych.
Co jest potrzebne do automatyzacji?
Podstawową jednostką sterującą jest Miniserver Loxone, który dba o inteligentne sterowanie, a dodatkowo zapewnia twoim klientom wiele przydatnych funkcji. Za pomocą samego Miniservera można sterować 4 elementami systemu zacieniania. System można jednak łatwo rozbudować używając Nano 2 Relay Tree. W ten sposób możesz zautomatyzować nieograniczoną liczbę żaluzji i rolet. (Dotyczy to konwencjonalnych silników napędzanych fazowo. W przypadku projektu, w którym są inne silniki, chętnie doradzimy, jak je zautomatyzować.)
Cena inteligentnego sterowania żaluzjami i roletami
Uwaga: Wszystkie ceny w tym artykule nie zawierają podatku VAT i są aktualne w dniu publikacji artykułu.
Wycena dla 4 elementów zacieniających
| Hardware Loxone: | Cena: |
| Miniserver – 1 sztuka | 2 751,00 zł |
| Licencje i inne opłaty | 0 zł |
| Całkowity koszt inteligentnego sterowania | 2 751,00 zł |
| Cena inteligentnego sterowania 1 żaluzji | 687,75 zł |
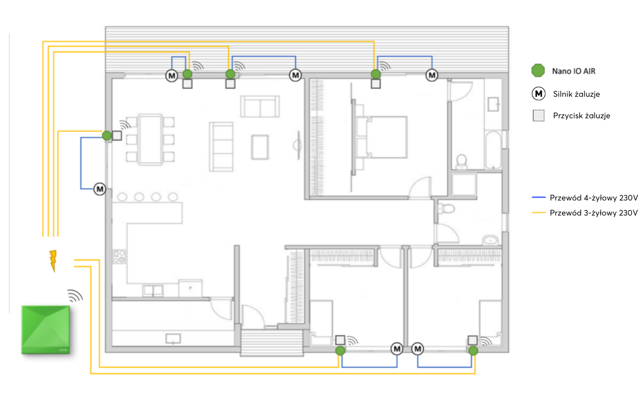
Wariant bezprzewodowy: 6 elementów zacieniających
Specjalnie na potrzeby gotowych instalacji lub wszędzie tam, gdzie nie ma możliwości wprowadzenia zmian w instalacji elektrycznej, świetnie sprawdzi się bezprzewodowa technologia Loxone Air. Zapewnia bardzo proste i niedrogie rozwiązanie do inteligentnego sterowania i automatyzacji zacieniania.
| Hardware Loxone: | Cena: |
| Miniserver Go – 1 sztuka | 1 652,00 zł |
| Nano IO Air – 6 sztuk | 3 000,00 zł |
| Licencje i inne opłaty | 0 zł |
| Całkowity koszt inteligentnego sterowania | 4 652,00 zł |
| Cena inteligentnego sterowania 1 żaluzji | 775,33 zł |
Zawarte funkcje:
Wszystkie powyższe konfiguracje zapewniają następujące funkcje:
✔ Sterowanie w zależności od położenia słońca: Miniserver Loxone oblicza na podstawie swojej pozycji, kiedy słońce wschodzi i kiedy zachodzi oraz jaki jest kąt padania promieni słonecznych na okna.
✔ Budzenie naturalnym światłem (żaluzje odsłaniają się przed lub razem z budzikiem).
✔ Możliwość zdefiniowania przeszkody (budynek, drzewo) na drodze światła słonecznego, którą automatyka uwzględni.
✔ Różne tryby: priorytet naturalnego światła lub optymalne chłodzenie.
✔ Sterowanie aplikacją: aplikacja jest darmowa i może sterować wszystkim w domu. Nie jest zależna od chmury. Nigdzie nie wysyła danych użytkownika. Umożliwia sterowanie każdym elementem osobno lub wszystkimi naraz z dowolnego miejsca na świecie.
✔ Aktualna pozycja rolet lub żaluzji w aplikacji: położenie systemu zacieniania jest wizualizowane graficznie dla każdego okna osobno.
✔ Sterowanie za pomocą zwykłego przycisku: nie ma potrzeby kupowania jednorazowych elementów sterujących.
✔ Sterowanie centralne: wszystkimi żaluzjami / roletami można łatwo kontrolować jednocześnie.
✔ Zapewnienie prywatności po zachodzie słońca
✔ Powiadomienia: wszelkie problemy lub ważne informacje zostaną wysłane do użytkownika e-mailem lub powiadomieniem push.
✔ Zarządzanie użytkownikami: każdy użytkownik może mieć indywidualne uprawnienia do kontrolowania zacienienia, np. tylko w swoim biurze lub pokoju.
✔ Zabezpieczenie przed dziećmi: przyciski można tymczasowo wyłączyć, aby dzieci się nimi nie bawiły.
✔ Niestandardowe reguły automatyczne: użytkownik może ustawić własną automatykę bezpośrednio w aplikacji (np. zaciągnij rolety na minutę przed rozpoczęciem wiadomości).
✔ Sterowanie za pomocą kodów QR
✔ Symulacja obecności: system zacieniania porusza się i sprawia wrażenie, że w budynku są ludzie, mimo że nikogo w środku nie ma.
✔ Kalendarze: możliwość ustawienia różnych trybów automatyki dla różnych okresów (zima / lato / święta / dni robocze / weekendy / itd)
✔ Możliwość definiowania grup: okna można grupować i sterować nimi jednym poleceniem.
✔ Wielokrotne wciśnięcie: podwójne lub potrójne naciśnięcie przycisku może wywołać różne polecenia.
✔ Długie wciśnięcie: przytrzymanie przycisku można wykorzystać do realizacji różnych poleceń.
✔ Przycisk opuszczenia domu: wybrany przycisk może być użyty do przełączenia wszystkich elementów zacieniających w tryb automatyczny przy wychodzeniu z domu.
✔ Przycisk alarmowy: dowolny przycisk może służyć do przywołania pomocy (np. w mieszkaniach wspomaganych).
✔ Przycisk na dobranoc: przycisk w sypialni można skonfigurować tak, aby użytkownik mógł zasłonić wszystkie rolety/żaluzje przed pójściem spać dla większego poczucia bezpieczeństwa i leszego snu.
✔ Elastyczność: możliwość łatwego rozszerzenia sterowania o inne elementy technologii zacieniania w dowolnym momencie.
✔ Obsługa skrótów Apple, w tym sterowanie głosowe Siri
✔ Darmowe aktualizacje: od 11 lat system regularnie otrzymuje aktualizacje, które wprowadzają nowe funkcje i poprawiają wydajność (zarówno sprzętu, jak i aplikacji).
✔ Uniwersalne zastosowanie: system Loxone może być stosowany do każdego rodzaju technologii zacieniania. Rolety, żaluzje, markizy, zasłony…
✔ Proste programowanie: wybierając jeden parametr w naszym oprogramowaniu, ustawiany jest cały rodzaj technologii zacieniania (predefiniowany blok programu). Każdy wykwalifikowany elektryk może programować za pomocą Loxone, jednocześnie oferując klientom ogromną liczbę funkcji, których wdrożenie w innym przypadku byłoby bardzo czasochłonne i drogie.
Tego u nas nie doświadczysz:
❌ Uzależnienie od serwerów dostawcy i przesyłanie danych do internetu.
❌ Ograniczenie maksymalnej liczby elementów.
❌ Konieczność uiszczania rocznych opłat.
Dodatki
Nano DI Tree – integracja kolejnych 3 przycisków sterujących.
Stacja pogodowa Loxone – umożliwia sterowanie zacienianie na podstawie pogody. Zacienianie jest aktywowane zgodnie z aktualnym natężeniem światła słonecznego. Wszystkie rodzaje zacieniania pracują z danymi dotyczącymi temperatury zewnętrznej i podejmują niezbędne działania przy silnym wietrze, aby zapobiec uszkodzeniom.
Remote Air – pilot zdalnego sterowania z 5 przyciskami, do których można przypisać dowolne działania (wymaga Miniserver Go lub Air Base Extension).
DI Extension – integracja nawet 10 przycisków do sterowania roletami, kontaktami okiennymi i drzwiowymi itp.
Touch Tree – przycisk Touch do sterowania systemem Loxone (w tym zacienianiem) pozwala również na sterowanie zacienieniem w oparciu o temperaturę w pomieszczeniu, a także sterowanie oświetleniem i dźwiękiem.
Touch for Nano – umożliwia integrację przycisku Touch bezpośrednio z urządzeniem Nano IO (bez okablowania).
Kontakt okienny Air – element zabezpieczający. Zacienianie jest blokowane, gdy drzwi / okna są otwarte. Nie może więc zdarzyć się, że automatyczne rolety np. zamkną kogoś na tarasie (wymaga Miniserver Go lub Air Base Extension).
Tagi NFC – umożliwiają kontrolę systemem zacieniania za pomocą NFC (wymaga urządzenia z systemem Android).
| Produkt: | Cena: |
| Nano DI Tree | 343,00 zł |
| Stacja pogodowa Tree | 2 149,00 zł |
| Remote Air | 227,00 zł |
| DI Extension | 1 194,00 zł |
| Touch Tree | 382,00 zł |
| Touch for Nano | 216,00 zł |
| Kontakt drzwiowy i okienny Air | 299,00 zł |
| NFC Smart Tags (25 sztuk) | 125,00 zł |
Zacienianie to dopiero początek!
Loxone oferuje ogromną liczbę funkcji, które łączy w jeden system i umożliwia ich sterowanie za pomocą jednej aplikacji. Doskonale nadaje się do użytku komercyjnego i domowego. Technologie takie jak inteligentne ogrzewanie, oświetlenie czy rekuperacja działają na rzecz osiągnięcia maksymalnej wydajności i zaspokojenia indywidualnych potrzeb klienta. Dzięki Miniserverowi możliwa jest rozbudowa systemu w dowolnym momencie, co często zdarza się, gdy klient w pełni odkryje jego możliwości.
Jesteś elektrykiem lub firmą instalacyjną?
Coraz więcej ludzi pragnie dziś mieszkać inteligentnym domu. Chcesz mieć przewagę nad konkurencją? Zapraszamy na webinarium na temat funkcji i programowania systemu Loxone.
Interesuje cię inteligentne zacienianie?
Miniserver Loxone to idealne narzędzie do prostego sterowania i inteligentnej automatyzacji wszelkiego rodzaju projektów, niezależnie od tego, czy jest to inteligentny dom, nieruchomość komercyjna czy projekt specjalny.


